Your Agent for Life
163 Baillou Hill Road
New Providence
Bahamas
Details
| Address | Governor's Harbour |
| Area | Eleuthera |
| Sub Area | Governor's Harbour |
| Country | Bahamas |
| Price | BSD 3,750,000 |
| Property Type | Lots/Acreage |
| Bedrooms | 0 |
| Bathrooms | 0 |
| Floor Space | 3635953 Square Feet |
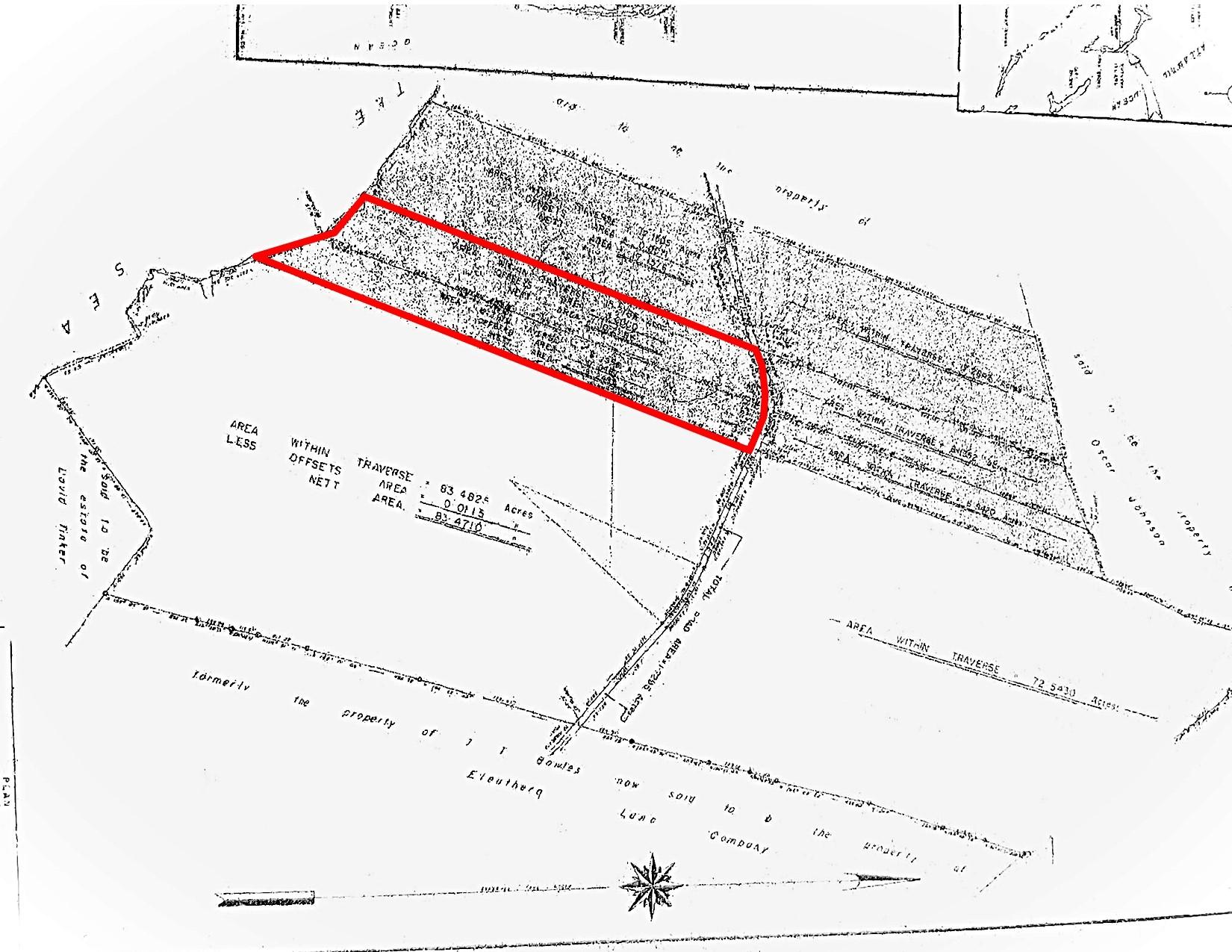
| Lot Size | 83.47 Acres |
| Parking | Open |
| MLS® # | 61089 |
Situated one mile south of Governor’s Harbour on the “Caribbean” side of the King’s Highway this 83.47 acre tract has elevations up to 75 feet. Property is ideally situated for land development with spectacular sea views, elevations and a rocky shoreline frontage with an approximate depth of 5 feet in high tide. There is an adjacent 36.68 acre waterfront tract to the north for sale. All utilities are on the Highway. Eleuthera is situated approximately 50 miles east of Nassau at its nearest point. It was settled in 1648 by the Eleutheran Adventurers – a band of English Puritans who left Bermuda in search of religious freedom. They named the island Eleuthera, which means Freedom (Eleftheria in Greek). The Adventurers founded what was probably the first democracy in the western world. Eleuthera is over 100 miles long and has lots of gorgeous pink and white sandy beaches, mainly on the ocean (east) side of the island. Numerous settlements dot the island and two offshore islands –Spanish Wells and Harbour Island - lie off the northern end.
Listing Courtesy of the Bahamas MLS
Share to Facebook
Send using WhatsApp
Post to X
Share to Pintrest